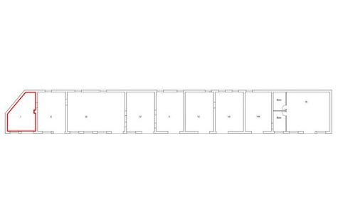
Halle 01: Lagerhalle mit 9 Einheiten
Die gesamte Lagerhalle ist in einem guten, renovierten Zustand mit einem gut nutzbaren Betonboden und neuen Türen. Wir bieten 9 Einzeleinheiten zwischen ca. 46- bis ca. 103 m² zur Anmietung an, diese sind ideal als Zwischenlager für Werkzeug und Material von Handwerksbetrieben u.s.w. Jede einzelne Einheit hat einen grosszügigen Hofbereich zum Be- und Entladen. Die Einheiten können miteinander verbunden werden. Parkplätze können hinzugemietet werden. Preise auf Anfrage.
| Lichte Höhe | Ebenerdige Tore | Torhöhe | Torbreite | Bürofläche | Heizung | Sanitär |
|---|---|---|---|---|---|---|
| 3,10 m | Schwingtüren | 2.25 m | 2,375 m | auf Anfrage | keine | vorhanden |
| Einheit | 1 | 2 | 3 | 4 | 5 | 6 | 7 | 8 | 9 |
|---|---|---|---|---|---|---|---|---|---|
| Größe ca.: | 46m² | 52m² | 103m² | 52m² | 51m² | 53m² | 52m² | 49m² | 102m² |
Download
Laden Sie hier alle Informationen als Datenblatt herunter.


